
servicios de un arquitecto
Cada centímetro cuenta. Transformamos espacios en experiencias
Conoces nuestros servicios de arquitectura
Arquitecta que crea espacios que mejoran la vida
Hacemos cambios y mejoras en tu inmueble para garantizar la buena experiencia en los espacios de tu hogar o local comercial.
Planta de conjunto
Desde un plano visto desde arriba observarás las ubicaciones de todos los elementos y como se integran entre sí.
Plantas Arquitectónicas
Representación 2D del funcionamiento de cada edificación y elementos del proyecto.
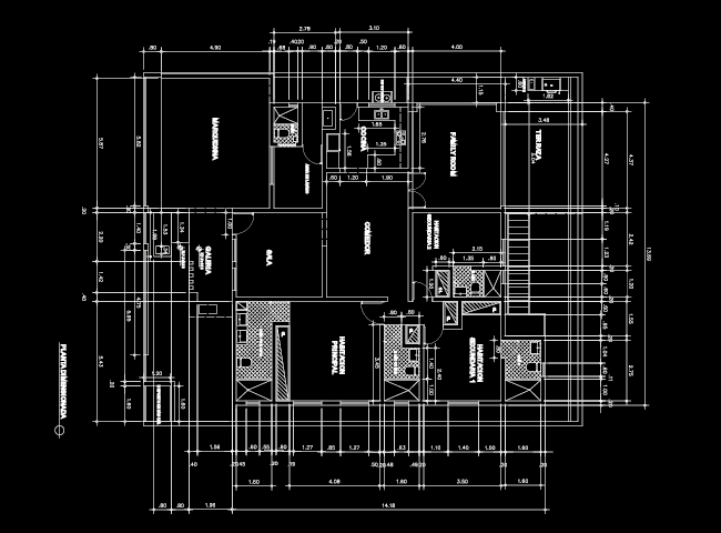
Plantas Dimensionadas
Es la planta en la cual se observan las medidas de los espacios dentro de la edificación.
Elevaciones
Permite ver las fachadas de los edificios y sus proporciones de manera plana o 2D.
Secciones
Representan los cortes de manera plana o 2D con la finalidad de permitir observar los detalles internos y externos del Diseño.
Vistas tridimensionales
Permite visualizar de manera realista el resultado final de la propuesta de diseño del proyecto.
Plano taller
Indica y especifica los detalles sugeridos en el proyecto tales como tipo de plantas, iluminación, recubrimientos y texturas, colores y demás elementos aplicables.

De poco vale tener mucho espacio si está mal distribuido
En la sabia distribución que transforma cada centímetro en una experiencia habitable y funcional, donde la elegancia y la utilidad se encuentra en perfecta armonía.
¿Buscas un Arquitecto?
Creamos Diseños arquitectónicos según las necesidades y expectativas de nuestros clientes
Combinamos la funcionalidad, estética y sostenibilidad. Un buen diseño arquitectónico debe optimizar el espacio disponible para crear un entorno confortable y funcional para sus usuarios.
Diseña un ambiente donde quieras pertenecer
Te ayudamos crear espacios que cumplan con tus necesidades y presupuesto. Creamos diseños que se adapten a tus objetivos. Habla con nuestro equipo de Arquitectos en República Dominicana y comienza Diseñar tus objetivos.

